top of page
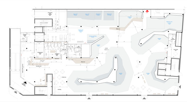
Triaden Klatresenter, Norway.
bouldering gym space planning and climbing walls design
year. 2025
location. Lørenskog, Norway
client. Moments Climbing
area. 1500 sq. m
climbing surface. 675 sq. m
site. https://triadenklatresenter.goactivebooking.com/
bottom of page











